替代进口SPD
机房防雷,机房作为有大量电子设备的场所,机房防雷一直都是学校、网络信息中心等的顾虑所在。雷击可以产生不同的破坏形式,国际电工委员会已将雷电灾害称为“电子时代的一大公害”, 雷击、感应雷击、电源尖波等瞬间过电压已成为破坏电子设备的罪魁祸首。当雷电引起传输线上产生过电压时,与线缆连接的设备接口部分、甚至整个设备都容易受到损坏。因此,可以通过合理屏蔽、交流配电系统防雷、通信弱电系统防雷和均压等电位接地等措施来保护机房及各类设备免遭雷击。

机房防雷措施一,屏蔽防雷
屏蔽防雷措施可以把沿空间传播的感应电磁脉冲屏蔽掉,这一措施需要机房建筑物在建设初期时体现。将建筑物的主钢筋网焊接联通,与建筑物防雷接地的地网相连接,形成屏蔽网。屏蔽网不仅可以防御感应雷,还可以防止外界其他电磁对机房的干扰。特别需要提醒的是,室内金属门窗应与屏蔽网连通。
机房防雷措施二,交流配电系统防雷
针对交流配电系统的部分防雷设置需要根据被保护信息系统的使用用途及重要程度确定防雷等级。交流配电系统宜采用三级防雷:在大楼低压配电室内加装一级防雷器,实现第1级防雷(由大楼实现)。在UPS输入配电柜内加装二级防雷器,实现第二级防雷。在机房UPS输出列头配电柜内加装三级防雷器,实现第三级防雷。
交流配电系统的防雷措施zui好在机房及建筑物建设的初期体现,但如果初期未考虑到,后期逐步完善也是比较容易实现的。

机房防雷措施三,通信弱电系统防雷
由于与信号传输线相连的设备接口的工作效率较低,而且耐压水平也很低,这些机房设备对于信号传输线引入的感应雷电波特别敏感,极易受到损坏。因此,非常有必要在设备的信号接口处安装具有抗过电压保护能力、工频过电流保护功能,以及响应速度快、防雷性能优越的信号防雷设备。
根据GB50343-2012《建筑物电子信息系统防雷技术规范》要求,通信弱电系统的防雷应针对通信线路的种类、工作电压、线路屏蔽情况以及传输速率等条件选择相应的浪涌保护器,保护线路及传输设备的安全。通信弱电系统防雷一般在机房使用过程中根据设备投入使用情况不断完善。
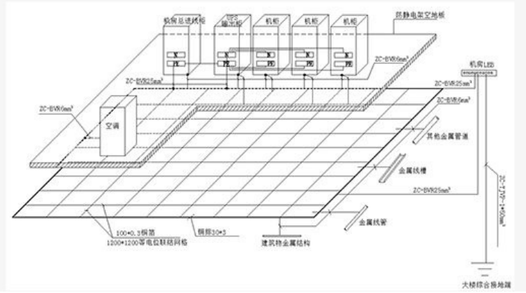
机房防雷措施四,均压等电位接地防雷
均压等电位连接是防止地电位反击的有效方法。在建筑物的一定范围内把进入建筑物的各种金属管道和线缆的屏蔽层做成等电位连接,形成一个封闭的均压环,以消除可能存在的破坏力极强的电位差。

常用的接地方式有共用接地、独立接地和混合接地三种。根据GB50343-2012《建筑物电子信息系统防雷技术规范》和GB50057-2010《建筑物防雷设计规范》要求,计算机机房的接地系统推荐采用共用接地方式。即把建筑物防雷地、设备保护地、交流工作地、直流工作地连在一起(优先使用建筑物自然地,即建筑物基础接地),建立等电位系统,以避免各地网间的电位差对设备进行反击。
-End-
微信咨询
官方公众号