替代进口SPD
防雷与接地装置,雷电是在自然界大气层中,在特定条件下形成的自然现象,雷云对地面泄放电荷的现象称为雷击。雷击产生的破坏力极大,它对地面上的建筑物、电气线路、电气设备和人身都可能或直接或间接的危害,因此必须采取适当的防范措施。

防雷与接地装置,在建筑电气设计中,把民用建筑按照防雷等级分为三类。第1类防雷建筑物是指具有特备重要用途和重大政治意义的建筑物、高度超过100m或40层以上的超高建筑物、我国文件保护的建筑物或构建物、19层及以上的住宅建筑物和高度超过50m的其他民用建筑物;第三类防雷建筑物是不属于第1类和第二类的建筑物﹑建筑群中高于其他建筑物或处于建筑物边缘地带的告诉为20m 以上的民用建筑物。

防雷与接地装置,接地装置是接地体和接地线的总称,其作用是将闪电电流导入地下,防雷系统的保护在很大程度上与此有关。
接地装置的作用是接受引下线传来的雷电流,并以zui快的速度泄入大地。接地装置由接地极和接地母线组成。接地母线是用来连接引下线和接地体的金属线,常用截面不小于25mm×4mm的扁钢。其中接地线分接地干线和接地直线,电气设备接地的部分就近通过接地支线与接地网的接地干线相连接。接地装置的导体截面.应符合热稳定和机械强度的要求。
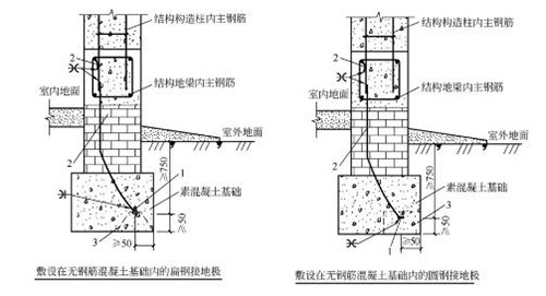
接地装置的接地体分为自然接地体和人工接地体。自然接地体是利用基础内的钢筋焊接而成;人工接地体是人工专门制作的,又分为水平和垂直接地体两种。水平接地体是指接地体与地面水平,而垂直接地体是指接地体与地面垂直。人工接地体水平敷设时一般用扁钢或圆钢,垂直敷设时一般用角钢或钢管。
为减少相邻接地体的屏蔽作用,垂直接地体的间距不宜小于其长度的2倍,水平接地体的相互间距可根据具体情况确定,但不宜小于5m。垂直接地休长度一般不小于2.5m埋深不应小于0.6m,距建筑物出入口或人行道或外墙不应小于3m。
防雷与接地装置,防雷与接地装置每年雷雨季节到来之前,应对接地装置全面检查,当接地电阻值超过规定值20%时,应增加接地体,以降低电阻值,使雷电流迅速导入地下。

防雷与接地装置的内容,小编就先介绍到这里。如果还有想要了解的问题,欢迎留言或来电咨询。
-End-
微信咨询
官方公众号